jueves, 17 de enero de 2013

Harbour me, Celia! / Peter Haimerl Architektur

Plataforma Arquitectura
Noticias de Arquitectura en español: Proyectos, Concursos, Edificios y más
Harbour me, Celia! / Peter Haimerl Architektur
Jan 17th 2013, 09:00

Arquitectos: Peter Haimerl Architektur
Ubicación: Munich, Bayern, Alemania
Año: 2008
Fotografías: Edward Beierle

En los últimos treinta años la mayoría de las antiguas casas de labranza en el bosque bávaro fueron destruidas, debido a la ignorancia y la falta de apreciación a las “cosas viejas”; a lo mejor también para borrar el testimonio contemporáneo de un tiempo bastante pobre. La consecuencia fue un déficit de tradición arquitectónica regional. Por otra parte, espacio disponible para las personas mayores se encuentran casi exclusivamente en estos pueblos agrícolas.

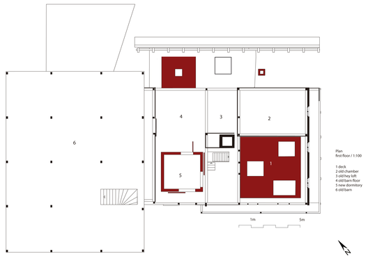
Por lo tanto el concepto arquitectónico tiene la intención de mantener la existencia – lo mas en ruinas posible – y no intervenir en la estructura del antiguo almacén “Celia”.

Las habitaciones del antiguo edificio quedan como están, sin eliminar nada de lo preexistente como las ventanas, el viejo yeso, las baldosas y otros antiguos accesorios.

El otro material que se extrae se recicla para producir muebles.

Cajas de hormigón van a ser dispuestas en algunas salas centrales, como en el antiguo salón donde se desarrollará la vida de este lugar.

Enormes recortes en la antigua fachada sin renovar permanecerán visibles. La nueva construcción enmarca a lo antiguo, lo transporta y protege; y el antiguo edificio acoge al nuevo.

Harbour me, Celia! / Peter Haimerl Architektur © Edward Beierle Harbour me, Celia! / Peter Haimerl Architektur © Edward Beierle Harbour me, Celia! / Peter Haimerl Architektur © Edward Beierle Harbour me, Celia! / Peter Haimerl Architektur © Edward Beierle Harbour me, Celia! / Peter Haimerl Architektur © Edward Beierle Harbour me, Celia! / Peter Haimerl Architektur © Edward Beierle Harbour me, Celia! / Peter Haimerl Architektur © Edward Beierle Harbour me, Celia! / Peter Haimerl Architektur © Edward Beierle Harbour me, Celia! / Peter Haimerl Architektur Planta primer nivel Harbour me, Celia! / Peter Haimerl Architektur Planta baja Harbour me, Celia! / Peter Haimerl Architektur Planta emplazamiento Harbour me, Celia! / Peter Haimerl Architektur Corte Harbour me, Celia! / Peter Haimerl Architektur Elevación Harbour me, Celia! / Peter Haimerl Architektur Elevación

You are receiving this email because you subscribed to this feed at blogtrottr.com.

If you no longer wish to receive these emails, you can unsubscribe from this feed, or manage all your subscriptions

0 comentarios:

Publicar un comentario

 
Design by Wordpress Theme | Bloggerized by Free Blogger Templates | coupon codes